士嘉堡 ELLE 高端时尚 Condo 购买价降14万-2卧2卫 带车位-$569,900-OCCUPIED
阅读量:265
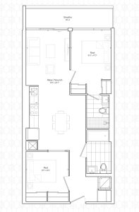
户型图
![]() |
房源介绍
| 楼盘名称 | ELLE Condo | ||
| 合同原价 (Original Price) |
$710,000 | ||
| 已付定金 (Deposit Paid) |
$140,000 | ||
| 当前要价 (Asking Price) |
$569,900 | ||
| 地址 | 1350 Ellesmere Rd (Brimley Rd&Ellesmere Rd) | ||
| 房屋类型 | Condo | ||
| 房屋面积 | 775 SqFt | ||
| 房间介绍 | 2卧室2卫浴 | ||
| 其他费用 | 管理费 | ||
| 车位或Locker情况 | 一车位 一locker | ||
| 交房日期 | In Occupancy | ||
| 房源描述 | 士嘉堡 Ellesmere 和 Brimley 交汇处。Elle 以高端、时尚的设计和贴心的奢华点缀为特色,15 层楼高的建筑营造出令人难以置信的都市生活氛围,却没有市中心的高昂价格。 | ||
|
|||
周边介绍
| 交通 | TTC 3 号线和Scarborough Centre站在步行范围内,401 号高速仅几分钟路程 | ||
| 学校 | UTSC, Centennial College | ||
| 环境 | 大量的绿色空间和郁郁葱葱的公园, 包括 Amberdale Ravine、Thomson 纪念公园和 West Highland Creek | ||
| 娱乐设施 | 公寓内设有保安接待, 健身房 , 宴会厅/会议室 , 游客停车场 , 自行车库 , 媒体室 , 健身房 , 游戏室 , 客房套房 , 屋顶露台/花园 , 电梯 , 娱乐室 , 可烧烤 | ||
|
|||
联系方式
| 电话 | 647-525-8886 |
| 邮箱 | [email protected] |
| 微信号 | richardhuang8 |
| 微信二维码 | ![]() |




