列治文山King East Town 3 卧室 楼花转让-$1,250,000
阅读量:248
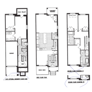
户型图
![]() |
房源介绍
| 楼盘名称 | King East Townhouse | ||
| 合同原价 (Original Price) |
$1,200,000 | ||
| 已付定金 (Deposit Paid) |
$120,000 | ||
| 当前要价 (Asking Price) |
$1,250,000 | ||
| 地址 | Seguin St (Yonge&King Rd) | ||
| 房屋类型 | Townhouse | ||
| 房屋面积 | 2415 SqFt | ||
| 房间介绍 | 3卧室 3.5卫浴 | ||
| 其他费用 | FreeHold 无管理费 | ||
| 车库 | Single | ||
| 交房日期 | 2025-01 | ||
| 房源描述 | King East 住户离家仅几分钟的路程,就能享受到各种餐饮、购物和娱乐选择。该地区也被认为是学生的理想选择,因为这里有几所大专院校,交通十分便利。周围还有多处绿地,包括自然小径、郁郁葱葱的公园和淡水湖。 | ||
|
|||
周边介绍
| 交通 | YRT、Viva的公交线路和Go车站仅几步之遥,近HWY 404, 驾车者可在 45 分钟内到达多伦多市中心。 | ||
| 学校 | 各种级别的优质学校, 包括早教中心、小学和中学。大专院校的学生也可以方便地前往 Seneca College King Campus。 | ||
| 环境 | 周边地区有郁郁葱葱的公园、大量的自然绿地和美丽的淡水湖 | ||
| 娱乐设施 | 驱车不远就能到达 Yonge 街,这里有许多餐饮、购物和娱乐选择。 | ||
|
|||
开发商介绍
| Plaza 的使命是打造一个生活方式品牌。他们已在 GTA 地区建造了 6000 多套公寓套房。他们在设计和装修方面追求持久的价值,并在交付的每个公寓项目中提供高水平的标准质量 | |
联系方式
| 电话 | 647-525-8886 |
| 邮箱 | [email protected] |
| 微信号 | richardhuang8 |
| 微信二维码 | ![]() |




