GTA最受欢迎的居住地区Lawrence Height 4卧室镇屋购买价降17万-$1,219,900
阅读量:252
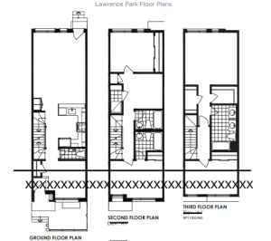
户型图
![]() |
房源介绍
| 楼盘名称 | Lawrence Height | ||
| 合同原价 (Original Price) |
$1.39M | ||
| 已付定金 (Deposit Paid) |
$280K | ||
| 当前要价 (Asking Price) |
$1,219,900 | ||
| 地址 | Lawrence Ave&Bathurst St | ||
| 房屋类型 | Townhouse | ||
| 房屋面积 | 2004 SqFt | ||
| 房间介绍 | 4卧室4卫浴 | ||
| 其他费用 | 管理费$294.74CAD/月 | ||
| 车库 | Single | ||
| 交房日期 | 2026-03 | ||
| 房源描述 | GTA最受欢迎的居住地,创新的现代联排别墅坐落在一个占地 12 英亩的新社区公园周围,沿Allen路的全新线性公园也正在开发中。该公园将设有游乐场、自行车道、步行道和再生树木。此外,还拟建更多的社区设施,包括新的社区中心、学校翻新工程和新的托儿设施。 | ||
|
|||
周边介绍
| 交通 | 15 分钟到达Lawrence West地铁站, 乘车 10 分钟即可到达未来的 Crosstown 轻轨站, 方便前往 401/400/404 号高速公路, 距离Allen Road只有几分钟路程 | ||
| 学校 | 该地区有很多现有的学校,包括私立学校、高中和大专院校,靠近York University | ||
| 环境 | 该地区有多家图书馆和社区中心,包括多伦多板球、滑冰和冰壶俱乐部,该俱乐部自 1827 年以来一直是社区的一部分。附近还有杂货店、药店、大卖场、咖啡馆和医院。 | ||
| 娱乐设施 | Yorkdale购物中心和Lawrence广场只有几分钟的路程,可满足所有购物需求,包括众多餐饮选择和电影院。 | ||
|
|||
开发商介绍
| Metropia 是加拿大中部地区和卡尔加里一家知名且值得信赖的开发公司。Metropia 专注于城市改造,已完成了许多价格实惠、面向未来且环保的项目。 | |
联系方式
| 电话 | 647-525-8886 |
| 邮箱 | [email protected] |
| 微信号 | richardhuang8 |
| 微信二维码 | ![]() |






