列治文山 Legacy Hill Townhouse 4卧室 双车库-购买价降8万转让-$1,168,900
阅读量:460
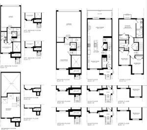
户型图
![]() |
房源介绍
| 楼盘名称 | Legacy Hill Couture Collection | ||
| 合同原价 (Original Price) |
$1.24M | ||
| 已付定金 (Deposit Paid) |
$160K | ||
| 当前要价 (Asking Price) |
$1,168,900 | ||
| 地址 | Leslie St & Major Mackenzie Drive | ||
| 房屋类型 | Townhouse | ||
| 房屋面积 | 1981 SqFt | ||
| 房间介绍 | 4卧室3.5卫浴 朝東 | ||
| 其他费用 | 管理费 | ||
| 车庫 | Double | ||
| 交房日期 | 2025-12 | ||
| 房源描述 | Legacy Hill 距离著名的 Bayview Hill 仅几步之遥,优越的地理位置确保了通勤的便捷性. 毗邻一系列基本设施,包括众多公园、一流学校、卓越的购物和餐饮场所. | ||
|
|||
周边介绍
| 交通 | GO Transit、Viva 服务、主要高速公路和未来地铁线. | ||
| 学校 | Legacy Hill 附近的学校已被独立机构评为全国顶级教育机构。这一殊荣不仅适用于私立学校,也适用于公立学校. | ||
| 环境 | Legacy Hill 周围有许多探险小径和风景如画的公园,如 Oak Ridges Moraine 和 Kettle Lakes,非常适合热爱户外活动的人们。医疗服务近在咫尺,确保您和家人的健康。这个家庭友好型社区拥有众多学校,为教育和个人成长创造了理想的环境。 | ||
|
|||
开发商介绍
| Treasure Hill Homes只用最好的材料和精湛的工艺建造最优质的新住宅。每一栋Treasure Hill 住宅都融合了许多元素:令人印象深刻的平面布局、高质量的建筑、超值的价格、便利的地理位置,最重要的是,让人感觉这是一个您愿意称之为家的地方。 | |
联系方式
| 电话 | 647-525-8886 |
| 邮箱 | [email protected] |
| 微信号 | richardhuang8 |
| 微信二维码 | ![]() |







